Description
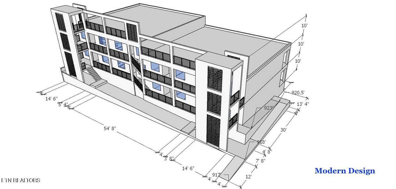
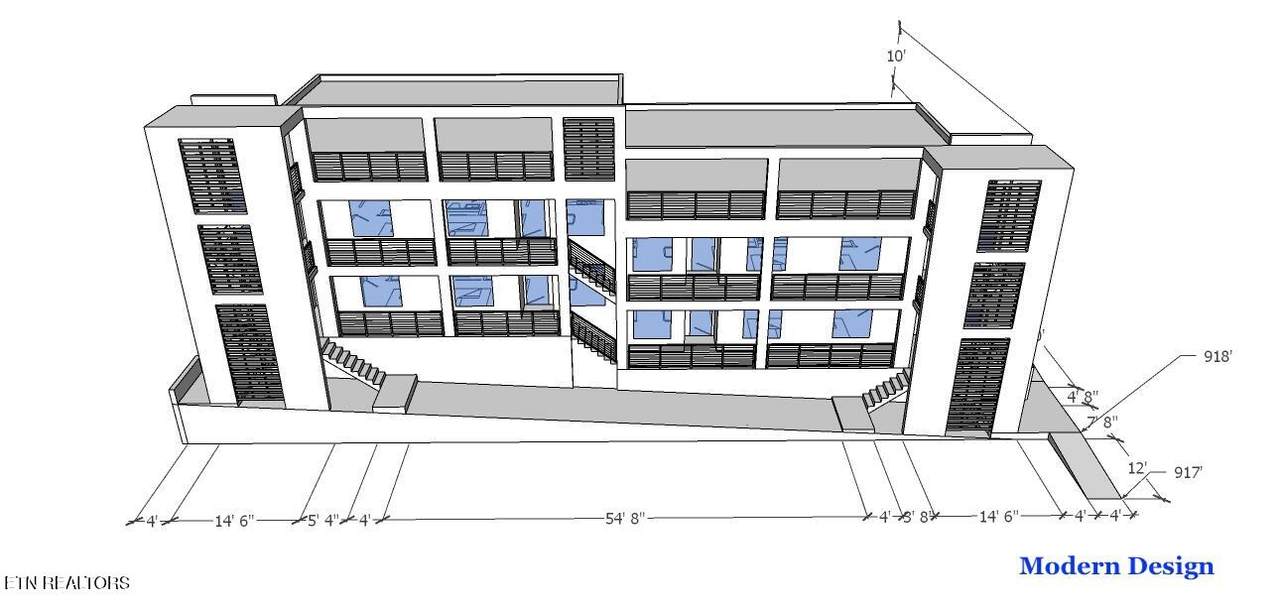
Prime Commercial Development Opportunity in Sevierville, TN Presenting an exceptional investment opportunity at 1483 Catlettsburg Rd, Sevierville, TN 37876a strategically located 1-acre parcel zoned C-3. This property comes with a professionally designed site plan for an 8-unit apartment complex, crafted by a reputable architect, and is ready for city approval. Capitalize on the lucrative rental market, whether targeting short-term vacationers or long-term residents. Property Highlights: - 1-acre lot - Survey completed, boundaries clearly defined - Utilities in place - Electricity, water, and gas available (City sewer extension option) - Ready-to-go development - Site plans available for immediate city approval Unbeatable Location: With an average of 11 million visitors annually to the area. The property is conveniently located near major retailers, shopping centers, and attractions, ensuring high visibility and accessibility. Nearby Shopping & Retail: - Walmart Supercenter - Belk Department Store - T.J.Maxx - Boot Factory Outlet - Buc-ee's: Just a short drive to Buc-ee's Sevierville, one of the area's biggest attractions! Close to Major Attractions: - Dollywood Theme Park - Great Smoky Mountains National Park - Ripley's Aquarium of the Smokies - Tanger Outlets Sevierville Located right off of Hwy 66 and just minutes from major highways, this property offers easy access to I-40, the Parkway (US-441), ensuring seamless connectivity to Sevierville, Pigeon Forge, Gatlinburg, and Knoxville. Investment Potential: This property represents a once-in-a-lifetime opportunity to develop a multi-unit residential complex in a high-demand area. With site plans ready and utilities in place, investors can swiftly move into the construction phase, positioning themselves to reap substantial returns from both the thriving short-term vacation rental market and the stable long-term rental sector.
-
0BEDS
-
1ACRES
-
0BATHS
-
01/2 BATHS
School Ratings & Info
Description
Prime Commercial Development Opportunity in Sevierville, TN Presenting an exceptional investment opportunity at 1483 Catlettsburg Rd, Sevierville, TN 37876a strategically located 1-acre parcel zoned C-3. This property comes with a professionally designed site plan for an 8-unit apartment complex, crafted by a reputable architect, and is ready for city approval. Capitalize on the lucrative rental market, whether targeting short-term vacationers or long-term residents. Property Highlights: - 1-acre lot - Survey completed, boundaries clearly defined - Utilities in place - Electricity, water, and gas available (City sewer extension option) - Ready-to-go development - Site plans available for immediate city approval Unbeatable Location: With an average of 11 million visitors annually to the area. The property is conveniently located near major retailers, shopping centers, and attractions, ensuring high visibility and accessibility. Nearby Shopping & Retail: - Walmart Supercenter - Belk Department Store - T.J.Maxx - Boot Factory Outlet - Buc-ee's: Just a short drive to Buc-ee's Sevierville, one of the area's biggest attractions! Close to Major Attractions: - Dollywood Theme Park - Great Smoky Mountains National Park - Ripley's Aquarium of the Smokies - Tanger Outlets Sevierville Located right off of Hwy 66 and just minutes from major highways, this property offers easy access to I-40, the Parkway (US-441), ensuring seamless connectivity to Sevierville, Pigeon Forge, Gatlinburg, and Knoxville. Investment Potential: This property represents a once-in-a-lifetime opportunity to develop a multi-unit residential complex in a high-demand area. With site plans ready and utilities in place, investors can swiftly move into the construction phase, positioning themselves to reap substantial returns from both the thriving short-term vacation rental market and the stable long-term rental sector.
Related Properties
© 2025 East Tennessee REALTORS®. All rights reserved. IDX information is provided exclusively for consumers' personal, non-commercial use and may not be used for any purpose other than to identify prospective properties consumers may be interested in purchasing. Some or all of the listings displayed may not belong to Adam Wilson Realty. Information is deemed reliable but is not guaranteed accurate by the MLS or Adam Wilson Realty. Data last updated: 2025-11-17T22:47:45.883.
