Description
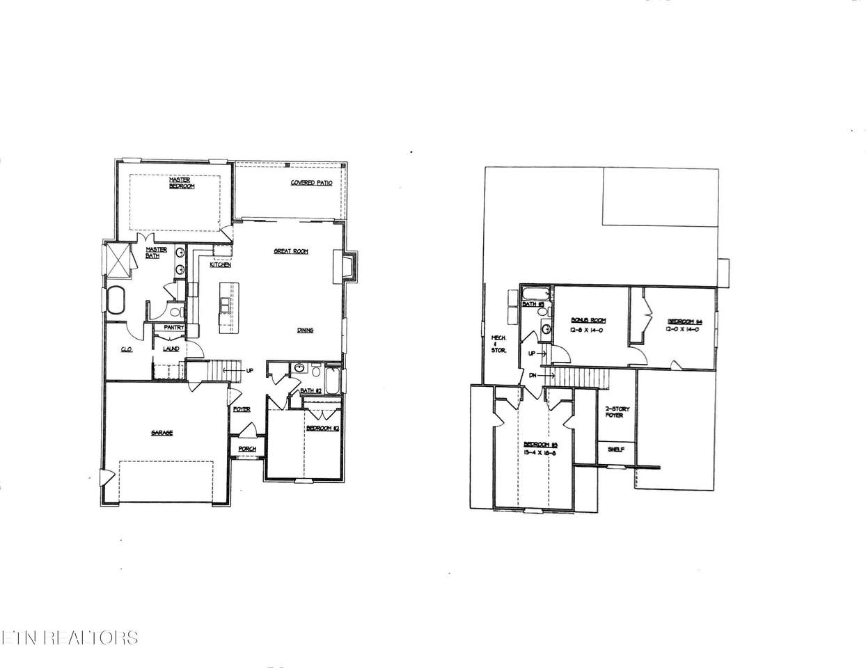
This Prestwick model home features a very open floor plan - great for entertaining. The all brick 2-story built by one of Knoxville's premier builders, features a MBR and BR-2 on main level, bright kitchen w/ granite countertops - stainless appliances - tile backsplash & under cabinet lighting opens into great room w/ gas logs stone fireplace and dining area - this open area is under a 10-ft ceiling and has massive glass doors opening onto covered patio, MBR on main w/ 10-ft trey ceiling & posh bath (custom tile shower - freestanding tub - 2 sinks w/ granite top & large walk-in closet), BR-2 on main w/ full bath, 2nd floor features 2 bedrooms - bonus or media room - full bath & walk-in storage, hardwood & tile floors, rich moldings, security system, rough-in central vac, tankless gas water heater, 2-car garage, sodded yard, irrigation, level backyard. Additional info at www.AveryManorHomes.com
-
4BEDS
-
0.19ACRES
-
3BATHS
-
01/2 BATHS
-
2,604SQFT
-
$263$/SQFT
School Information
Description
This Prestwick model home features a very open floor plan - great for entertaining. The all brick 2-story built by one of Knoxville's premier builders, features a MBR and BR-2 on main level, bright kitchen w/ granite countertops - stainless appliances - tile backsplash & under cabinet lighting opens into great room w/ gas logs stone fireplace and dining area - this open area is under a 10-ft ceiling and has massive glass doors opening onto covered patio, MBR on main w/ 10-ft trey ceiling & posh bath (custom tile shower - freestanding tub - 2 sinks w/ granite top & large walk-in closet), BR-2 on main w/ full bath, 2nd floor features 2 bedrooms - bonus or media room - full bath & walk-in storage, hardwood & tile floors, rich moldings, security system, rough-in central vac, tankless gas water heater, 2-car garage, sodded yard, irrigation, level backyard. Additional info at www.AveryManorHomes.com
© 2026 East Tennessee REALTORS®. All rights reserved. IDX information is provided exclusively for consumers' personal, non-commercial use and may not be used for any purpose other than to identify prospective properties consumers may be interested in purchasing. Some or all of the listings displayed may not belong to Adam Wilson Realty. Information is deemed reliable but is not guaranteed accurate by the MLS or Adam Wilson Realty. Data last updated: 2026-02-13T21:47:39.647.
