Description
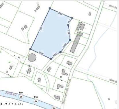
This 6.99-acre property presents a fantastic opportunity for both single-family homes or multi-family development. Its zoning as R2 Low Density Residential allows for flexibility, with the potential for up to four-unit structures. Convenient proximity to APD-40, providing quick access to I-75 and Downtown Cleveland—ideal for residents who need to commute or want to be near city amenities. With 6.99 acres of land, you have ample space to create a development project that could range from single-family homes to multi-family townhomes or duplexes, depending on your vision. The lot's size and location make it a strong candidate for a variety of residential uses.
-
0BEDS
-
6.99ACRES
-
0BATHS
-
01/2 BATHS
School Ratings & Info
Description
This 6.99-acre property presents a fantastic opportunity for both single-family homes or multi-family development. Its zoning as R2 Low Density Residential allows for flexibility, with the potential for up to four-unit structures. Convenient proximity to APD-40, providing quick access to I-75 and Downtown Cleveland—ideal for residents who need to commute or want to be near city amenities. With 6.99 acres of land, you have ample space to create a development project that could range from single-family homes to multi-family townhomes or duplexes, depending on your vision. The lot's size and location make it a strong candidate for a variety of residential uses.
© 2026 East Tennessee REALTORS®. All rights reserved. IDX information is provided exclusively for consumers' personal, non-commercial use and may not be used for any purpose other than to identify prospective properties consumers may be interested in purchasing. Some or all of the listings displayed may not belong to Adam Wilson Realty. Information is deemed reliable but is not guaranteed accurate by the MLS or Adam Wilson Realty. Data last updated: 2026-02-14T10:47:40.207.
